美観・安全性をあわせ持つ機能性安全カバー!
お客様のお困りごと FB-41
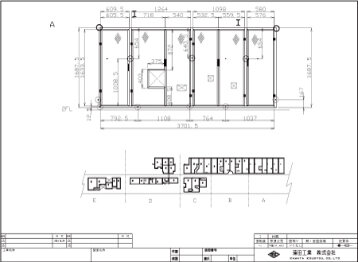
製造ラインを囲む安全カバーが劣化しており更新を検討されていらっしゃいました。 ラインの変更に合わせ、過去に何度も継ぎ足しながら製作されているので、全体の統一感がなく見栄えも悪い状態でした。また一部の樹脂板に破損も見受けられました。
お客様の抱える課題
- 製造ライン全体を大きく囲うのではなく、設備の起伏に合わせ、コンパクトにカバーしたい。
- 市販のアルミフレームを使用してお客様ご自身でカバーを設計、製作するのは大変手間がかかる。
- 既設品は樹脂板を使用しているが、割れやすく異物混入、コンタミネーションの恐れもある為、他の場所でも実績のあるエキスパンドメタルを板材として使用したい。
蒲田工業からのご提案内容
KAMATAアルミフレーム+エキスパンドメタル焼き付け塗装品をご提案しました。
解決のポイント
- KAMATAアルミフレームは設計自由度が高く、お客様の設備に合わせた形状に製作可能。
- 3㎜×4㎜の板材を挟み込む構造なので、ご指定のエキスパンドメタルも採用可能。
- メンテナンスなどで開口部が必要な場合も、フレームはバラさずに板材のみ外せる。
- 本体への取付の際に必要なブラケットや購入品も、蒲田工業にすべてお任せで設計・手配できる。
- 取り付け作業もお客様がご満足いただけるまで、責任を持って行います。
- 本体フレームへの取り付けはボルトオン構造とし、分解やライン変更時の一時撤去をする際も大がかりな作業が不要。

エキスパンドメタル形状

焼き付け塗装溶接金網

自社で設計施工まで請け負う
製品に関する詳細ページ
解決した内容、お客様の声
今までは見栄えが非常に悪かったが、清潔感がありきれいなカバーが出来てとても良かったです。割れや異物混入の問題も無くなり安全性も向上しました。またお願いしたいと思います。
蒲田工業がご提供できる価値
KAMATAアルミフレームは、クリーンブースのフレームの一種です。
設計自由度が高く、板を挟み込む独自構造により、安全カバーや間仕切りやショーケース等、様々な用途にご使用頂けます。
施工はスケッチから取り付け工事まで一貫して行います。
さらに、ご予算やご用途に応じて、溶接構造の金属カバーやオール樹脂製カバーなどの設計製作・設置も行います。
事例番号
FB-41
※お問い合わせの際は「事例番号」をお伝え下さい。
営業パーソンの紹介 静岡西営業所 中嶋康介

実績と経験を活かし、レベルの高い営業力で所内でも信頼度はNo.1。
現場密着型のスタイルで、お困りごとをお客様と一緒に解決し、問い合わせに対しても常に全力で対応する事を柱としています。
この事例に関連する他の事例の紹介
バルブからの薬液飛散防止!誤操作も防ぐ透明安全カバー
[共通キーワード:安全対策]
安全対策に!低コストのマシンカバーを設置
[共通キーワード:安全対策]
オリジナル柵で緊急時の非常径路の安全確保に!
[共通キーワード:アルミフレーム]
KAMATAマシンカバー
[共通キーワード:KAMATAクリーン環境]