特注タンク製作-設計・製作・取付け・品質保証のワンストップサービス
お客様のお困りごと MB-38
食品工場で撹拌機付きの特注タンクを使用していたのお客様からのご相談です。
老朽化が原因で買い替えをご検討されていましたが、改修費用が以前の2倍近くなるとわかりお困りでした。
お客様の抱える課題
- 既成タンクを購入してから撹拌機を設置するため、納期が長くなる
- ワンタッチで撹拌機を脱着できるよう、特殊な設計が必要だった
- 新商品開発に向け、短納期での納入が必要だった
蒲田工業からのご提案内容
蒲田工業がオリジナルでタンクを設計・製作し、撹拌機取付け改修・現場への納入・品質保証・メンテナンスをワンストップで対応することをご提案。
既成品購入・改修よりも低価格・納期短縮を実現しました。
さらに、お客様の現場を詳細に把握できたことで、撹拌機の脱着や蓋の開け締めなどの細かな作業効率向上にも貢献しました。
解決のポイント
- 特注タンクを製作できるメーカー様と協業し、お客様の現場にピッタリのタンクを設計・製作(撹拌機の取付け)
- 納入した特注タンクに品質保証を付与。お客様が安心して使用できる製品を納入
- 撹拌機の脱着をはじめ、作業効率を向上する提案も合わせて納入
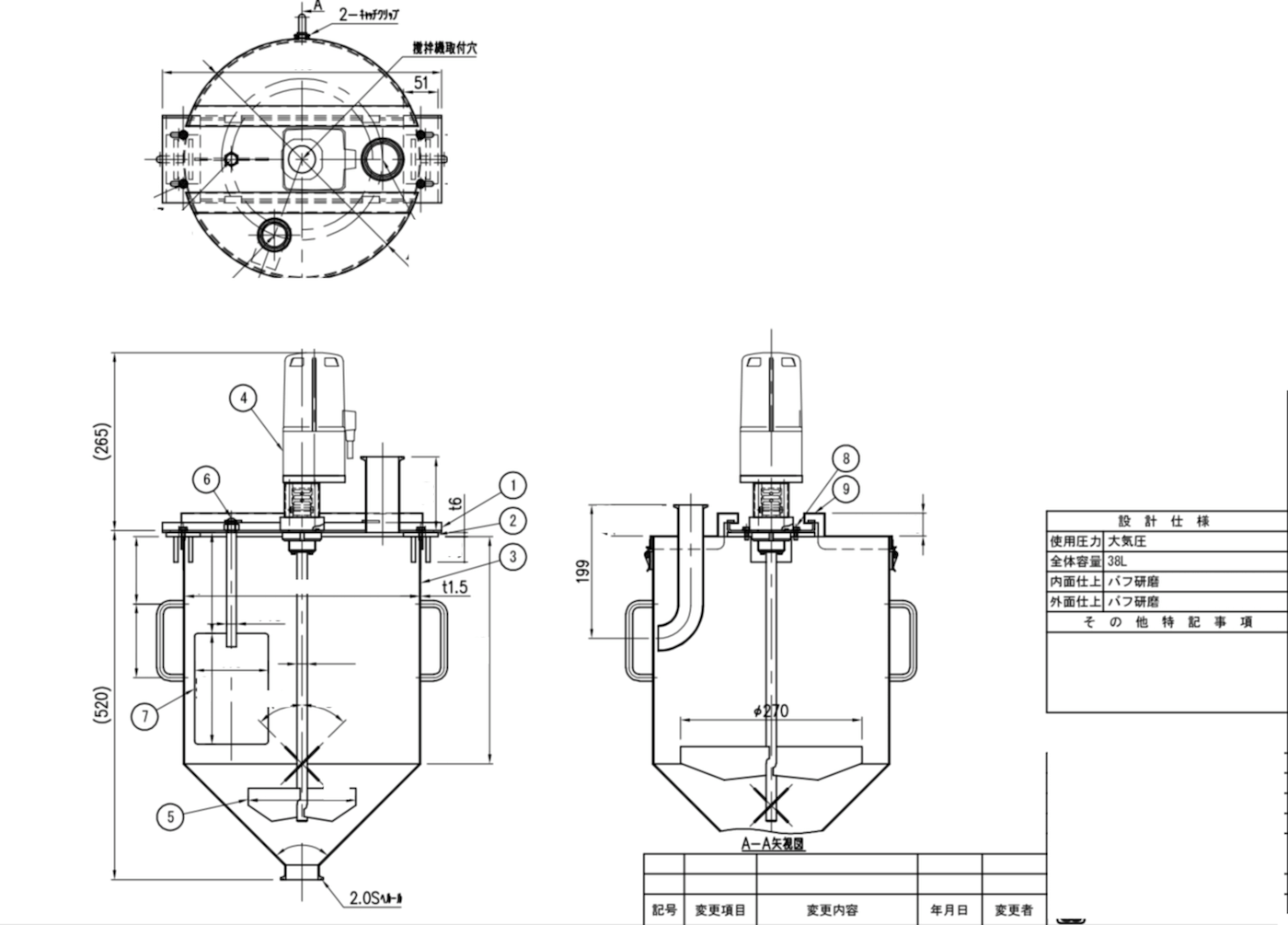
オリジナルタンクの設計図面(一部抜粋)

お客様の声
新製品製作のトライアルに間に合ったので助かりました。 また、使い勝手も良く、問題なく使用できております。
蒲田工業がご提供できる価値
担当の営業マンがお客様の現場とお困り事を詳細に把握することで、複数の改善方法をご提案し、設計・製作・取付け・メンテナンスなどをワンストップで対応可能です。
また、様々な仕入先様と協業することで複雑な案件や納期単種が必要な場合でも対応可能なこともございます。製造現場でお困り事がございましたら、蒲田工業へご相談ください。
事例番号
MB-38
※お問い合わせの際は「事例番号」をお伝え下さい。
営業パーソンの紹介 営業本部 佐藤勝

サッカーとフットサルを愛する当社のエースストライカーです。
フットワークの良さを活かし、業種や工程を問わずあらゆる分野で課題を解決に導きます。
生産性の向上、工程の自動化、安全対策など今まで多くの実績を築き上げてきました。
この事例に関連する他の事例の紹介
冷凍・冷蔵倉庫製作に海上コンテナを再利用。新規製作と比較して大幅なコスト削減を実現
[キーワード:コストダウン]
梱包・パレットへの積み作業の自動化を実現。 各種装置の設計・製作、動線・レイアウト設計までを一括請負
[キーワード:一貫施工]
製作図面なしの排気ダクト更新工事
[キーワード:排気ダクト]
サニタリーホース専用の特注乾燥保管庫・クリーンエアー吹き込み付きを製作!
[キーワード:特注]
オーダーメイドでステンレス製流し台を製作、投入シュートをつけて省力化!
[キーワード:オーダーメイド]
タンク安全対策工事 スペースに制約のある中でいかに安全性を高められるか!
[キーワード:タンク安全対策]
特注のハネ下げ式コンベヤを含むコンベヤラインを短期間で完成!
[共通キーワード:改修・改善、特注機械・設備の設計・製作]
OEM受託を可能にする環境整備と、生産効率向上を同時に実現
[共通キーワード:設備改修、生産効率向上]